Bienvenue au 69 Place de la Petite-Suisse. Nichée sur un vaste terrain de plus de 33 000 pc entouré de nature à Morin-Heights, cette charmante propriété se trouve à seulement quelques minutes des pentes de ski, cafés, restaurants et boutiques de Saint-Sauveur. Elle offre 2+2 chambres, 2 salles de bain complètes et un espace de vie à aire ouverte agrémenté d'un foyer au gaz. Profitez d'un lumineux solarium et d'une véranda moustiquaire pour une vie intérieure-extérieure harmonieuse, ainsi qu'un garage double pour votre confort. Un véritable havre alliant confort, chaleur et tranquillité. Appelez-nous dès aujourd'hui pour une visite privée !
Services et commodités à proximité
* Activités de plein air : Sentiers de ski de fond et de
randonnée de Morin-Heights, Corridor aérobique et parcs
locaux
* Ski alpin : Sommet Morin-Heights (5 min) et Sommet
Saint-Sauveur (10 min)
* Spa et bien-être : Amerispa Spa Nordique Morin-Heights (4
min)
* Sports et loisirs : Centre sportif et aréna de
Morin-Heights (7 min)
* Écoles : École primaire Morin-Heights, Laurentian
Regional High School
*Épiceries et essentiels : Marché Vaillancourt, IGA
Saint-Sauveur et dépanneurs locaux
* Pharmacie et santé : Familiprix Morin-Heights,
Coopérative de santé Morin-Heights
* Restaurants et boutiques : Cafés, restaurants et
commerces du village de Saint-Sauveur
* Transport : Accès facile à la route 364 et à l'autoroute
15
Inclus : Lave-vaisselle, laveuse et sécheuse, aspirateur central, stores, tringles et rideaux, armoire blanche du bureau, tabourets de cuisine, équipement du système d'alarme.
Exclus : Caméras de securité
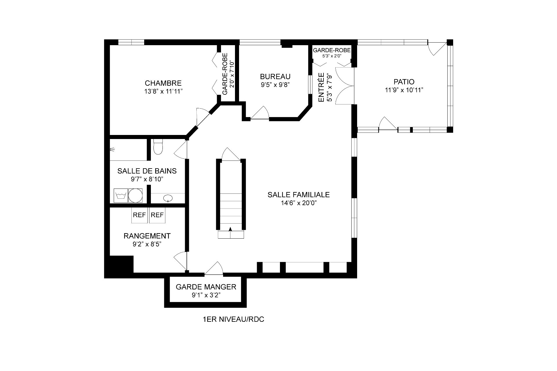
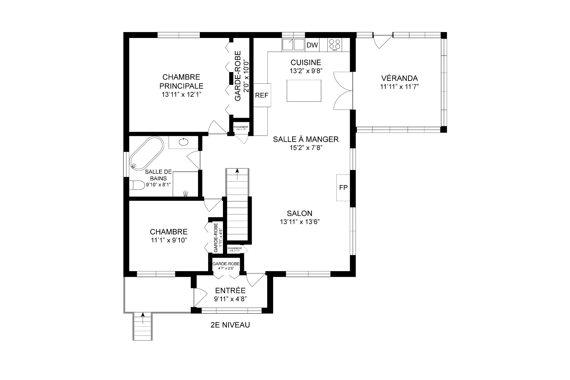
| Chambre | Dimensions | Niveau | Revêtement |
|---|---|---|---|
| Autre | 9.11 x 4.8 P | 2ième étage | Céramique |
| Salon | 13.11 x 13.6 P | 2ième étage | Bois |
| Salle à manger | 15.2 x 7.8 P | 2ième étage | Bois |
| Cuisine | 13.2 x 9.8 P | 2ième étage | Céramique |
| Chambre à coucher principale | 13.11 x 12.1 P | 2ième étage | Bois |
| Chambre à coucher | 11.1 x 9.10 P | 2ième étage | Bois |
| Salle de bains | 9.10 x 8.1 P | 2ième étage | Céramique |
| Autre | 5.3 x 7.9 P | Rez-de-chaussée | Couvre-sol souple |
| Salle familiale | 14.6 x 20.0 P | Rez-de-chaussée | Couvre-sol souple |
| Chambre à coucher | 13.8 x 11.11 P | Rez-de-chaussée | Couvre-sol souple |
| Autre | 9.5 x 9.8 P | Rez-de-chaussée | Couvre-sol souple |
| Salle de bains | 9.7 x 8.10 P | Rez-de-chaussée | Couvre-sol souple |
| Rangement | 9.2 x 8.5 P | Rez-de-chaussée | Couvre-sol souple |
| Autre | 9.1 x 3.2 P | Rez-de-chaussée | Couvre-sol souple |
| Sous-sol | 6 pieds et plus, Entrée indépendante, Totalement aménagé |
|---|---|
| Stationnement | Au garage, Extérieur |
| Proximité | Autoroute/Voie rapide, École primaire, École secondaire, Golf, Parc-espace vert, Sentier de motoneige, Sentier de VTT, Ski alpin, Ski de fond |
| Revêtements | Autre |
| Toiture | Bardeaux d'asphalte |
| Fondation | Béton coulé |
| Armoires | Bois |
| Garage | Chauffé, Détaché |
| Particularités | Coin de rue, Cul-de-sac, Terrain boisé : feuillus |
| Allée | Double largeur ou plus, Non pavée |
| Salle de bains/salle d'eau | Douche indépendante |
| Équipement disponible | Échangeur d'air, Installation aspirateur central, Porte de garage électrique, Système d'alarme, Thermopompe murale |
| Énergie pour le chauffage | Électricité, Propane |
| Foyers-poêles | Foyer au gaz |
| Type de fenêtre | Manivelle |
| Aménagement du terrain | Patio, Paysager |
| Mode de chauffage | Plinthes à convection, Plinthes électriques |
| Approvisionnement en eau | Puits artésien |
| Fenêtres | PVC |
| Zonage | Résidentiel |
| Système d'égouts | Système BIONEST |
Cette inscription est présentée en collaboration avec M IMMOBILIER