Terrebonne (Terrebonne) J6X4P9
Maison à étages | MLS: 27000282
Voici une rare occasion d'acquérir une résidence intergénérationnelle nichée dans le prestigieux Domaine de la Pinière sur un vaste terrain boisé de plus de 17 000 pi² sans voisin arrière. La demeure principale offre 3+1 chambres à coucher, un garage double, deux foyers au gaz au rez-de-chaussée et des salles de bain entièrement rénovées avec goût. Le sous-sol aménagé comprend une cave à vin sur mesure nouvellement aménagée. L'unité intergénérationnelle propose 1+1 chambre, une mezzanine et un salon à plafond cathédrale. Vous profiterez pleinement de la belle saison grâce à la piscine creusée chauffée dans un cadre naturel exceptionnel.
Située dans le prestigieux Domaine de la Pinière, cette
résidence intergénérationnelle côte-à-côte se distingue par
la qualité de sa construction et son emplacement
privilégié, sur un terrain boisé de plus de 17 000 pi²,
sans voisin à l'arrière. Le cadre est intime, calme et
verdoyant.
Le hall principal impressionne par son escalier central,
élément architectural fort qui relie les niveaux de la
maison.
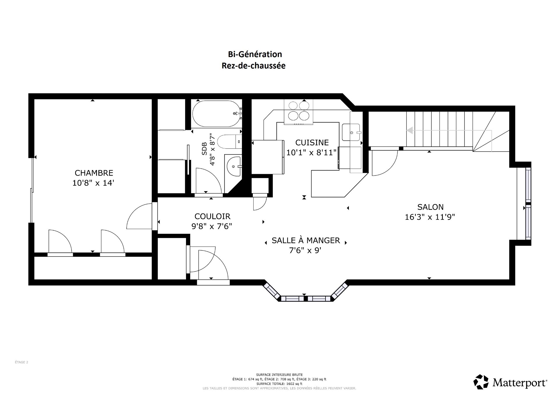
Le rez-de-chaussée propose un agencement équilibré et
fonctionnel. Le salon et la salle à manger se partagent un
foyer double face au gaz avec manteau en érable. La cuisine
en bois d'érable est équipée de comptoirs de granit, d'une
plaque au gaz et d'un four encastré. Le coin repas,
agrémenté d'un second foyer au gaz, surplombe la cour
arrière.
À l'étage, la suite principale offre une grande chambre
lumineuse, un walk-in aménagé et une salle de bain rénovée
avec douche vitrée spacieuse, bain autoportant,
robinetterie dorée et vanité sur mesure avec comptoir de
quartz. Les deux autres chambres de l'étage partagent une
salle de bain secondaire également rénovée dans un style
contemporain.
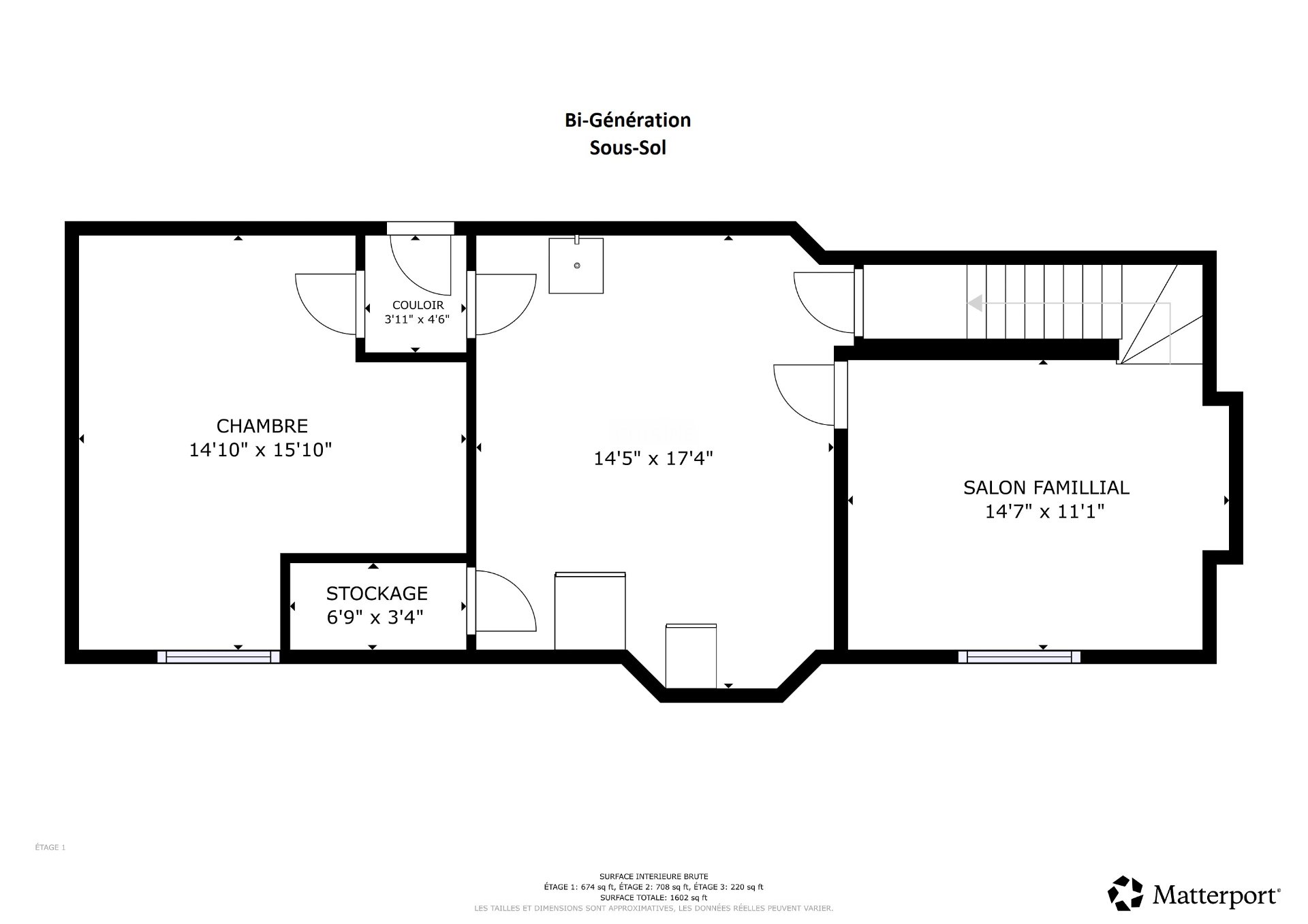
Au sous-sol, on retrouve une grande salle familiale, un
espace bar, une chambre d'invités et une salle de bain
complète. La cave à vin sur mesure, nouvellement aménagée,
comprend rangement en bois, éclairage à intensité réglable
et contrôle de température intégré.
L'unité intergénérationnelle, adjacente mais totalement
indépendante, comprend 1+1 chambre, une mezzanine, une
cuisine complète et un salon à plafond cathédrale. Sa
fenestration abondante et son aménagement ouvert en font un
espace lumineux et accueillant, idéal pour un proche ou un
revenu d'appoint.
Le terrain paysager a été conçu pour le confort et la
détente. On y retrouve une piscine creusée chauffée, un spa
et une terrasse en pavé uni, le tout bordé d'un boisé
mature et d'un ruisseau. L'aménagement extérieur permet de
profiter du soleil du matin jusqu'au crépuscule dans une
intimité complète.
À proximité des axes routiers (A-640, 25 et 440), des
écoles, garderies et services, cette propriété conjugue
prestige, espace et tranquillité dans un secteur reconnu
pour la qualité de vie qu'il offre.
Inclus : 1479: Fixtures, Rideaux, Pôles, Stores, Cabanon, Aspirateur central et ses accessoires, Cellier de la cuisine, Cave à vin avec rangement en bois et refroidisseur, Plaque chauffante au gaz, Four encastré, Micro-ondes encastré, Frigo, Lave-vaisselle, Chauffe piscine électrique (sans garantie de bon fonctionnement), Système au sel pour piscine (sans garantie de bon fonctionnement), Système de filtration de la piscine, Clôture amovible, Système d'irrigation, Éclairage extérieur, Moteur porte garage.
Exclus : Les biens des propriétaire, Spa, Deux gazebos extérieurs.
| Chambre | Dimensions | Niveau | Revêtement |
|---|---|---|---|
| Cuisine | 8.11 x 10.1 P | Rez-de-chaussée | Céramique |
| Cuisine | 10.4 x 14.8 P | Rez-de-chaussée | Céramique |
| Salle à manger | 7.6 x 9.0 P | Rez-de-chaussée | Céramique |
| Coin repas | 10.4 x 14.8 P | Rez-de-chaussée | Céramique |
| Salle à manger | 11.3 x 14.1 P | Rez-de-chaussée | Bois |
| Hall d'entrée | 9.8 x 7.6 P | Rez-de-chaussée | Céramique |
| Salon | 20.9 x 16.9 P | Rez-de-chaussée | Bois |
| Salon | 16.3 x 11.9 P | Rez-de-chaussée | Parqueterie |
| Hall d'entrée | 6.10 x 14.9 P | Rez-de-chaussée | Céramique |
| Chambre à coucher principale | 16.7 x 10.8 P | Rez-de-chaussée | Parqueterie |
| Salle de bains | 8.0 x 8.7 P | Rez-de-chaussée | Céramique |
| Salle d'eau | 6.5 x 7.2 P | Rez-de-chaussée | Céramique |
| Mezzanine | 13.6 x 15.3 P | 2ième étage | Parqueterie |
| Salle de lavage | 5.7 x 6.10 P | Rez-de-chaussée | Céramique |
| Salle familiale | 14.7 x 11.1 P | Sous-sol | Parqueterie |
| Chambre à coucher principale | 17.0 x 14.3 P | 2ième étage | Bois |
| Bureau à domicile | 14.5 x 17.4 P | Sous-sol | Parqueterie |
| Salle de bains | 11.8 x 10.8 P | 2ième étage | Céramique |
| Rangement | 6.9 x 3.4 P | Sous-sol | Parqueterie |
| Chambre à coucher | 11.0 x 18.10 P | 2ième étage | Bois |
| Chambre à coucher | 14.10 x 15.10 P | Sous-sol | Parqueterie |
| Chambre à coucher | 15.2 x 13.11 P | 2ième étage | Bois |
| Autre | 3.11 x 4.6 P | Sous-sol | Parqueterie |
| Salle de bains | 9.10 x 5.3 P | 2ième étage | Céramique |
| Chambre à coucher | 13.6 x 13.11 P | Sous-sol | Parqueterie |
| Cave à vin | 10.6 x 8.6 P | Sous-sol | Céramique |
| Salle de bains | 9.10 x 5.4 P | Sous-sol | Céramique |
| Salle familiale | 35.10 x 16.1 P | Sous-sol | Parqueterie |
| Rangement | 8.9 x 9.7 P | Sous-sol | Céramique |
| Sous-sol | 6 pieds et plus, Totalement aménagé |
|---|---|
| Garage | Attaché, Chauffé, Double largeur ou plus, Intégré |
| Salle de bains/salle d'eau | Attenante à la chambre principale, Douche indépendante |
| Stationnement | Au garage, Extérieur |
| Proximité | Autoroute/Voie rapide, Cegep, École primaire, École secondaire, Garderie/CPE, Golf, Parc-espace vert, Transport en commun |
| Mode de chauffage | Autre, Plinthes à convection, Plinthes électriques |
| Toiture | Bardeaux d'asphalte |
| Fondation | Béton coulé |
| Armoires | Bois |
| Piscine | Chauffée, Creusée |
| Équipement disponible | Climatiseur central, Climatiseur mural, Cour privée, Échangeur d'air, Installation aspirateur central, Porte de garage électrique, Système d'alarme |
| Aménagement du terrain | Clôturé |
| Type de fenêtre | Coulissante, Manivelle, Porte-fenêtre |
| Énergie pour le chauffage | Électricité, Gaz naturel |
| Foyers-poêles | Foyer au gaz |
| Revêtements | Granulat (agrégat), Pierre |
| Particularités | Intergénération, Terrain boisé : feuillus |
| Système d'égouts | Municipal |
| Approvisionnement en eau | Municipalité |
| Allée | Pavé uni |
| Topographie | Plat |
| Fenêtres | PVC |
| Zonage | Résidentiel |
Cette inscription est présentée en collaboration avec EXP AGENCE IMMOBILIÈRE