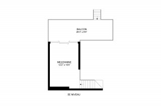
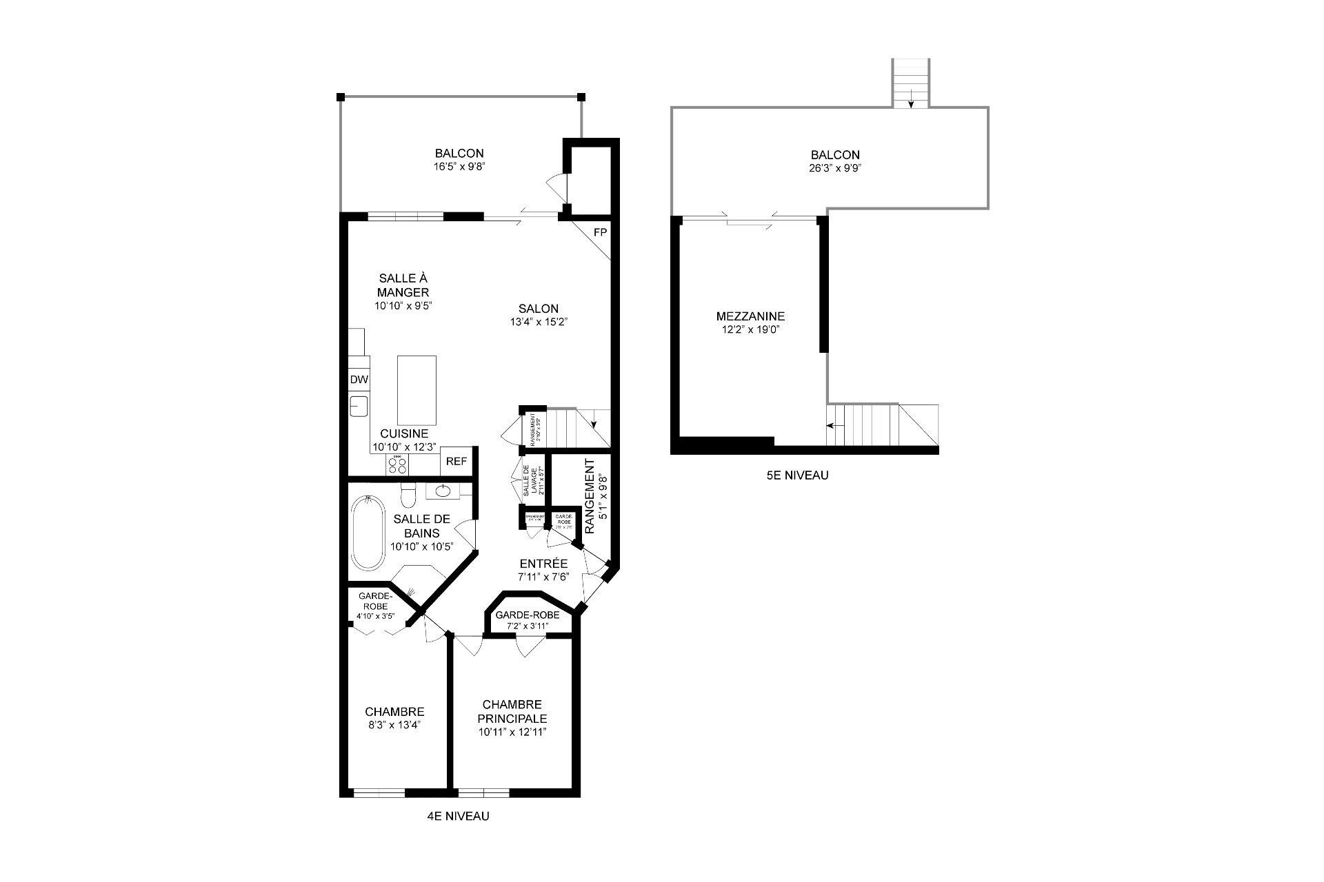
GARAGE + STATIONNEMENT EXTÉRIEUR Superbe condo à Mascouche offrant un style de vie recherché! Plafond cathédral aire ouverte réunissant salon, salle à manger et cuisine, agrémenté d'un foyer au gaz naturel pour une ambiance chaleureuse. La propriété propose une mezzanine actuellement aménagée en chambre à coucher, idéale pour optimiser l'espace. Deux balcons, dont un avec sortie de gaz naturel pour BBQ, parfait pour vos moments de détente. Grand îlot central, système de chauffage et climatisation centrale pour un confort absolu.
***GARAGE + STATIONNEMENT EXTÉRIEUR***
Superbe condo à Mascouche offrant un style de vie recherché! Profitez d'un espace lumineux à aire ouverte réunissant salon, salle à manger et cuisine, agrémenté d'un foyer au gaz naturel pour une ambiance chaleureuse. La propriété propose une mezzanine actuellement aménagée en chambre à coucher, idéale pour optimiser l'espace. Deux balcons, dont un avec sortie de gaz naturel pour BBQ, parfait pour vos moments de détente. Grand îlot central, système de chauffage et climatisation centrale pour un confort absolu. Un espace de rangement s'ajoutent à cette unité, en plus d'un garage et d'un stationnement extérieur.
Localisation stratégique à proximité du parc de la Seigneurie, pistes cyclables, écoles, commerces, train de banlieue et accès rapide aux autoroutes 25 et 640.
Une opportunité à ne pas manquer!
Inclus : Stores, luminaires, aspirateur central et acc , tablettes cc, hotte de cuisine .
Exclus : Penderie PAX mezzanine / lave -vaisselle/ cuisinière / frigo
| Chambre | Dimensions | Niveau | Revêtement |
|---|---|---|---|
| Hall d'entrée | 7.3 x 5.2 P | 3ième étage | Céramique |
| Hall d'entrée | 7.3 x 5.2 P | 3ième étage | Céramique |
| Salon | 15.7 x 12.4 P | 3ième étage | Bois |
| Salon | 15.7 x 12.4 P | 3ième étage | Bois |
| Cuisine | 12.2 x 10.10 P | 3ième étage | Céramique |
| Cuisine | 12.2 x 10.10 P | 3ième étage | Céramique |
| Salle à manger | 11.8 x 8.8 P | 3ième étage | Bois |
| Salle à manger | 11.8 x 8.8 P | 3ième étage | Bois |
| Chambre à coucher | 12.8 x 10.11 P | 3ième étage | Bois |
| Chambre à coucher | 12.8 x 10.11 P | 3ième étage | Bois |
| Salle de bains | 10.11 x 8.0 P | 3ième étage | Céramique |
| Salle de bains | 10.11 x 8.0 P | 3ième étage | Céramique |
| Chambre à coucher | 13.4 x 8.8 P | 3ième étage | Bois |
| Chambre à coucher | 13.4 x 8.8 P | 3ième étage | Bois |
| Chambre à coucher principale | 19.11 x 12.11 P | AU | Bois |
| Chambre à coucher principale | 19.11 x 12.11 P | AU | Bois |
| Autre | 16.0 x 9.8 P | 3ième étage | |
| Autre | 16.0 x 9.8 P | 3ième étage | |
| Autre | 20.0 x 10.0 P | 4ième étage | |
| Autre | 20.0 x 10.0 P | 4ième étage |
| Mode de chauffage | Air soufflé |
|---|---|
| Allée | Asphalte |
| Stationnement | Au garage |
| Proximité | Autoroute/Voie rapide, Autre, École primaire, École secondaire, Garderie/CPE, Golf, Parc-espace vert, Piste cyclable |
| Équipement disponible | Balcon privé, Installation aspirateur central, Interphone, Porte de garage électrique, Thermopompe centrale |
| Garage | Chauffé, Intégré |
| Appareils en location | Chauffe-eau |
| Services disponibles | Détecteur d'incendie, Espace de rangement extérieur |
| Foyers-poêles | Foyer au gaz |
| Énergie pour le chauffage | Gaz naturel |
| Système d'égouts | Municipal |
| Approvisionnement en eau | Municipalité |
| Zonage | Résidentiel |
Cette inscription est présentée en collaboration avec EXP AGENCE IMMOBILIÈRE