Charmant plain-pied, bien entretenu et situé dans un cul-de-sac. Rez-de-chaussée lumineux, avec pièces de vie de belle dimension. Cuisine avec plusieurs rangements, Îlot avec espace lunch, 2 chambres et 1 salle de bain. Au sous-sol vous trouverez une grande salle familiale, 1 salle de lavage, une 2e salle de bain et un grand espace de rangement(possible de faire une 3e chambre). La cour arrière est bordée par des haies, apportant l'intimité. La propriété est aussi dotée d'un abri d'auto et un stationnement pour 3 voitures. Situé à proximité de tous les services, écoles, cégep, parcs, hôpital, accès rapide à l'autoroute 15 et route 117.
Charmant plain-pied, soigneusement entretenu, situé dans un
paisible cul-de-sac.
Cette propriété est idéale pour une vie confortable et
fonctionnelle.
Le rez-de-chaussée lumineux propose des pièces de vie de
belles dimensions, créant une atmosphère chaleureuse et
accueillante. La cuisine fonctionnelle dispose de nombreux
espaces de rangement ainsi que d'un îlot avec coin lunch,
parfait pour les repas du quotidien. On y retrouve
également deux chambres et une salle de bain complète.
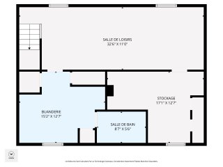
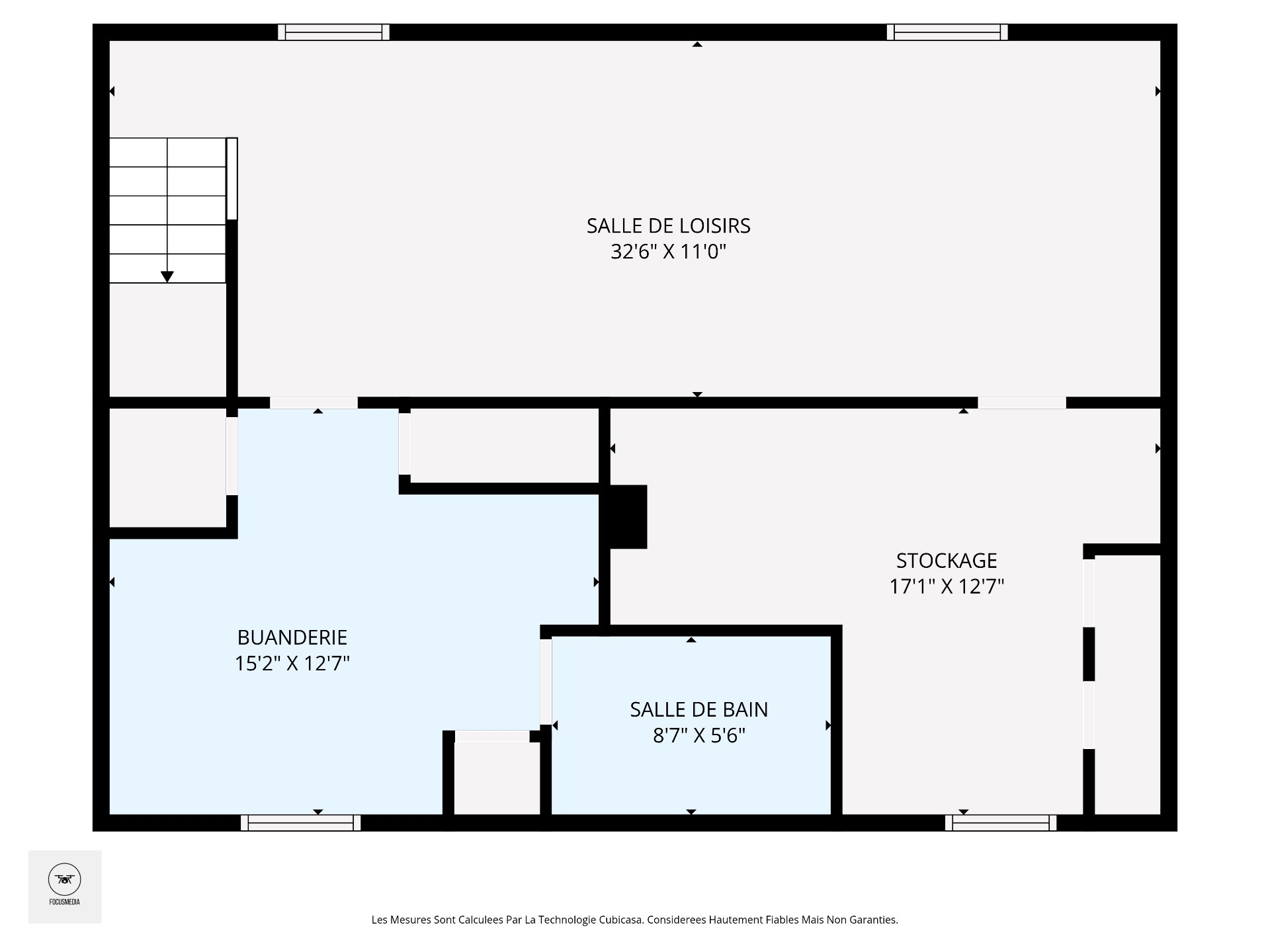
Au sous-sol, vous découvrirez une vaste salle familiale,
une salle de lavage, une deuxième salle de bain ainsi qu'un
grand espace de rangement( pourrait être converti en 3e
chambre), offrant de multiples possibilités d'aménagement.
La cour arrière intime, bordée de haies, vous permettra de
profiter pleinement de l'extérieur en toute tranquillité.
La propriété comprend également un abri d'auto et un
stationnement pouvant accueillir jusqu'à trois véhicules.
Idéalement située à proximité de tous les services :
écoles, cégep, université, du Carrefour du Nord, des parcs,
dont le Parc régional de la Rivière-du-Nord, avec son
sentier pédestre, piste cyclable, sentier de ski de fond et
de raquette et ces magnifiques chutes d'eau. À environ 20
minutes de la station de ski alpin Mont-St-Sauveur. À
quelques minutes de l'hôpital de Saint-Jérôme. Un accès
rapide à l'autoroute 15 - 640 et à la route 117 et aux
divers axes routiers. Cette propriété n'attend que vous!!
Inclus : Fixtures.
| Chambre | Dimensions | Niveau | Revêtement |
|---|---|---|---|
| Salon | 13.0 x 12.7 P | Rez-de-chaussée | Bois |
| Cuisine | 13.9 x 9.4 P | Rez-de-chaussée | Céramique |
| Salle à manger | 14.7 x 13.9 P | Rez-de-chaussée | Bois |
| Chambre à coucher | 11.1 x 7.6 P | Rez-de-chaussée | Bois |
| Chambre à coucher | 11.0 x 10.11 P | Rez-de-chaussée | Bois |
| Salle de bains | 8.11 x 5.1 P | Rez-de-chaussée | Céramique |
| Salle familiale | 32.6 x 11.0 P | Sous-sol | Plancher flottant |
| Salle de lavage | 15.2 x 12.7 P | Sous-sol | Plancher flottant |
| Salle de bains | 8.7 x 5.6 P | Sous-sol | Céramique |
| Rangement | 17.1 x 12.7 P | Sous-sol | Plancher flottant |
| Sous-sol | 6 pieds et plus, Totalement aménagé |
|---|---|
| Stationnement | À l'abri, Extérieur |
| Mode de chauffage | Air soufflé, Plinthes à convection, Plinthes électriques |
| Allée | Asphalte |
| Abri d'auto | Attaché |
| Proximité | Autoroute/Voie rapide, Cegep, École primaire, École secondaire, Garderie/CPE, Hôpital, Parc-espace vert, Piste cyclable, Ski de fond, Transport en commun, Université |
| Toiture | Bardeaux d'asphalte |
| Fondation | Béton coulé |
| Revêtements | Brique, Vinyle |
| Aménagement du terrain | Clôturé, Paysager, Terrain/cour bordé de haies |
| Type de fenêtre | Coulissante, Manivelle, Porte-fenêtre |
| Particularités | Cul-de-sac |
| Salle de bains/salle d'eau | Douche indépendante |
| Énergie pour le chauffage | Électricité |
| Système d'égouts | Municipal |
| Approvisionnement en eau | Municipalité |
| Topographie | Plat |
| Fenêtres | PVC |
| Zonage | Résidentiel |
| Équipement disponible | Thermopompe centrale |
Cette inscription est présentée en collaboration avec EXP AGENCE IMMOBILIÈRE