2026-Apr-26 | 14:00 - 16:00
Deux-Montagnes J7R4C9
Maison de plain-pied | MLS: 11367478
Wow, rare sur le marché!! Propriété rénovée avec soin, à quelques minutes du REM, secteur de choix! 4 chambres pour le logement principal et logement accessoire d'une chambre avec panneau électrique indépendant. Le vendeur pourrait installer le gazon. Cuisine avec grand ilôt, toutes les pièces sont spacieuses, parfaite pour votre famille avec un revenu d'appoint. Les 2 logements sont libres à l'acheteur! Faites vite! Un véritable clé en mains!
- Sous-sol et ceinture de rive isolé à l'uréthane
- Cour gigantesque
- Entrée indépendante avec son propre stationnement pour le logement accessoire
- Toutes les fenêtres ont été changées (à l'exception de celle de la salle à manger)
Il ne vous reste qu'à vous y installer!
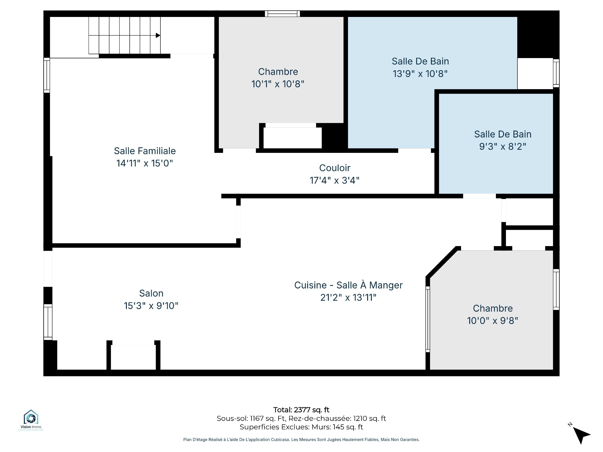
| Chambre | Dimensions | Niveau | Revêtement |
|---|---|---|---|
| Salon | 15.3 x 9.10 P | Sous-sol | Plancher flottant |
| Salon | 19.10 x 12.10 P | Rez-de-chaussée | Bois |
| Salon | 15.3 x 9.10 P | Sous-sol | Plancher flottant |
| Salon | 19.10 x 12.10 P | Rez-de-chaussée | Bois |
| Cuisine | 21.2 x 13.11 P | Sous-sol | Plancher flottant |
| Salle à manger | 9.3 x 13.5 P | Rez-de-chaussée | Bois |
| Cuisine | 21.2 x 13.11 P | Sous-sol | Plancher flottant |
| Salle à manger | 9.3 x 13.5 P | Rez-de-chaussée | Bois |
| Chambre à coucher | 10.0 x 9.8 P | Sous-sol | Plancher flottant |
| Cuisine | 13.11 x 14.0 P | Rez-de-chaussée | Bois |
| Chambre à coucher | 10.0 x 9.8 P | Sous-sol | Plancher flottant |
| Cuisine | 13.11 x 14.0 P | Rez-de-chaussée | Bois |
| Salle de bains | 9.3 x 8.2 P | Sous-sol | Plancher flottant |
| Chambre à coucher principale | 10.2 x 13.6 P | Rez-de-chaussée | Bois |
| Salle de bains | 9.3 x 8.2 P | Sous-sol | Plancher flottant |
| Chambre à coucher principale | 10.2 x 13.6 P | Rez-de-chaussée | Bois |
| Chambre à coucher | 10.2 x 13.6 P | Rez-de-chaussée | Bois |
| Chambre à coucher | 10.2 x 13.6 P | Rez-de-chaussée | Bois |
| Chambre à coucher | 11.0 x 11.7 P | Rez-de-chaussée | Bois |
| Chambre à coucher | 11.0 x 11.7 P | Rez-de-chaussée | Bois |
| Salle de bains | 6.0 x 11.7 P | Rez-de-chaussée | Céramique |
| Salle de bains | 6.0 x 11.7 P | Rez-de-chaussée | Céramique |
| Salle familiale | 15 x 14.11 P | Sous-sol | Plancher flottant |
| Salle familiale | 15 x 14.11 P | Sous-sol | Plancher flottant |
| Chambre à coucher | 10.1 x 10.8 P | Sous-sol | Plancher flottant |
| Chambre à coucher | 10.1 x 10.8 P | Sous-sol | Plancher flottant |
| Salle de bains | 13.9 x 10.8 P | Sous-sol | Plancher flottant |
| Salle de bains | 13.9 x 10.8 P | Sous-sol | Plancher flottant |
| Sous-sol | 6 pieds et plus, Entrée indépendante, Totalement aménagé |
|---|---|
| Allée | Asphalte, Non pavée |
| Proximité | Autoroute/Voie rapide, École primaire, École secondaire, Garderie/CPE, Hôpital, Parc-espace vert, Piste cyclable, Réseau Express Métropolitain (REM), Transport en commun |
| Toiture | Bardeaux d'asphalte |
| Fondation | Béton coulé |
| Revêtements | Brique |
| Appareils en location | Chauffe-eau |
| Équipement disponible | Cour privée, Installation aspirateur central |
| Salle de bains/salle d'eau | Douche indépendante |
| Énergie pour le chauffage | Électricité |
| Stationnement | Extérieur |
| Foyers-poêles | Foyer au bois |
| Particularités | Intergénération |
| Système d'égouts | Municipal |
| Approvisionnement en eau | Municipalité |
| Topographie | Plat |
| Mode de chauffage | Plinthes électriques |
| Zonage | Résidentiel |
Cette inscription est présentée en collaboration avec EXP AGENCE IMMOBILIÈRE